КОСМОДРОМ - Электронные компоненты для разработки и производства - Харьков - Украина
|
Уважаемые покупатели. Обратите внимание на наш график работы - 13 апреля 2026 года - выходной день. Далее работаем по графику. |
|
 |
| |
|
|
|
|
полный перечень
продукции HAHN
на складе
Hahn Elektrobau GmbH
Трансформаторы
для печатного монтажа
BV 20
EI 30
EI 38
EI 42
EI 48
EI 54
EI 60
EI 66
Плоские трансформаторы
для печатного монтажа
UI 21
UI 30
UI 39
UI 48
|
Плоские
трансформаторы для печатного монтажа серии
UI 30
|
Трансформаторы плоского типа серии UI30
|
|
·
Мощность - до 16 ВА
·
Трансформаторы температурного класса 70°C/B не защищены от
короткого замыкания
·
Обязательное тестирование всех моделей на соответствие
стандартам ENEC 05- KEMA-, KEUR-, VDE-, CSA- и UL-. Факт
тестирования подтверждается соответствующей маркировкой на
корпусе трансформатора.
·
Вакуумная герметизация, разделение обмоток на две камеры
·
Стабильность параметров при температурных изменениях
·
Высокий уровень безопасности и долгий срок службы
·
Устойчивость первичной обмотки к броскам напряжения
·
Негорючий материал корпуса и заливного компаунда
|
|
|
Огромный
модельный ряд трансформаторов HAHN в диапазоне мощностей от 1,0 до
60,0 ВА является примером качественных изделий, удовлетворяющих
всем требованиям для современного электротехнического
оборудования. Каждый элемент проверяется на соответствие нормам
качества (отмечено цветной точкой на трансформаторе) и
изготавливается с использованием вакуумной герметизации.
Электрическая прочность тестируется при напряжении 6000 В (хотя
нормы VDE 0507 и CEE 15 требуют всего 3750 В при проверке).
Изоляционные и воздушные промежутки составляют не менее 10 мм.
Температурные классы 70°С/B соответствуют VDE 0507, EN 61558 и CEE
15.
|
|
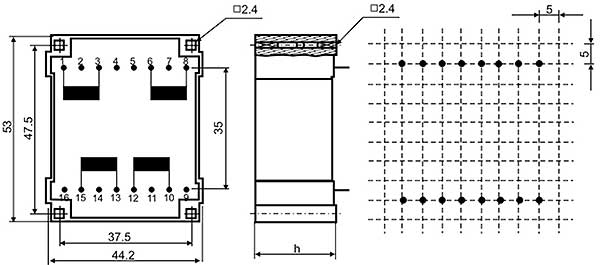
Габаритный чертеж, мм
|
|
Вид со
стороны выводов
|
|
Установочные размеры (± 0,3 мм)
|
|
|
|
|
Выводы, мм
|
0.6 x 0.8
или Ж
0.8
|
|
Первичная
обмотка I?
|
1-3
|
|
Первичная
обмотка I?
|
6-8
|
|
Вторичная
обмотка II?
|
10-12
|
|
Вторичная
обмотка II?
|
13-15
|
|
Тип
|
Мощность(температурный класс
70°C/B)
|
h (мм)
|
Масса, г
|
Упаковка,
шт
|
|
BV UI 301…
|
3.0
|
17.8
|
130
|
24
|
|
BV UI 302…
|
4.0
|
19.8
|
150
|
24
|
|
BV UI 303…
|
6.0
|
22.8
|
180
|
24
|
|
BV UI 304…
|
10.0
|
28.8
|
260
|
15
|
|
BV UI 305…
|
16.0
|
37.6
|
370
|
15
|
|
Использование обмоток:
-
Подключение к сети 110 В/115 В/120 В, замкнуть между собой выводы:
1 и 6, 3 и 8
-
Подключение к сети 220 В/230 В/240 В, замкнуть между собой выводы:
3 и 6
- Удвоение
выходного напряжения: замкнуть выводы 12 и 13
- Удвоение
выходного тока: замкнуть выводы 10 и 13, 12 и 15
|
|
Наименование
|
Мощность, ВА
|
Напряжение первичной обмотки, В
|
Выводы первичной обмотки
|
Напряжение вторичной обмотки, В
|
Ток вторичной обмотки, мА
|
Выводы вторичной обмотки
|
Напряжение вторичной обмотки (х.х.),
В
|
|
BV UI 301 0007
|
3
|
2x110
|
1-3/6-8
|
2x6
|
250
|
10-12/13-15
|
2x7.9
|
|
BV UI 301 0008
|
3
|
2x110
|
1-3/6-8
|
2x9
|
167
|
10-12/13-15
|
2x13.6
|
|
BV UI 301 0009
|
3
|
2x110
|
1-3/6-8
|
2x12
|
126
|
10-12/13-15
|
2x18.5
|
|
BV UI 301 0010
|
3
|
2x110
|
1-3/6-8
|
2x15
|
100
|
10-12/13-15
|
2x22.7
|
|
BV UI 301 0011
|
3
|
2x110
|
1-3/6-8
|
2x18
|
83
|
10-12/13-15
|
2x27.1
|
|
BV UI 301 0012
|
3
|
2x110
|
1-3/6-8
|
2x21
|
71
|
10-12/13-15
|
2x31.6
|
|
BV UI 301 0132
|
3
|
2x120
|
1-3/6-8
|
2x9
|
167
|
10-12/13-15
|
2x13.6
|
|
BV UI 301 0133
|
3
|
2x115
|
1-3/6-8
|
2x12
|
126
|
10-12/13-15
|
2x18.5
|
|
BV UI 301 0146
|
3
|
2x115
|
1-3/6-8
|
2x18
|
83
|
10-12/13-15
|
2x27.1
|
|
BV UI 301 0157
|
3
|
2x115
|
1-3/6-8
|
2x21
|
71
|
10-12/13-15
|
2x31.6
|
|
BV UI 301 0166
|
3
|
2x115
|
1-3/6-8
|
2x15
|
100
|
10-12/13-15
|
2x22.7
|
|
BV UI 301 0167
|
3
|
2x115
|
1-3/6-8
|
2x6
|
250
|
10-12/13-15
|
2x7.9
|
|
BV UI 301 0168
|
3
|
2x115
|
1-3/6-8
|
2x9
|
167
|
10-12/13-15
|
2x13.6
|
|
BV UI 302 0013
|
4
|
2x110
|
1-3/6-8
|
2x6
|
333
|
10-12/13-15
|
2x9.5
|
|
BV UI 302 0014
|
4
|
2x110
|
1-3/6-8
|
2x9
|
222
|
10-12/13-15
|
2x13.5
|
|
BV UI 302 0015
|
4
|
2x110
|
1-3/6-8
|
2x12
|
166
|
10-12/13-15
|
2x20.1
|
|
BV UI 302 0016
|
4
|
2x110
|
1-3/6-8
|
2x15
|
133
|
10-12/13-15
|
2x25.3
|
|
BV UI 302 0017
|
4
|
2x110
|
1-3/6-8
|
2x18
|
111
|
10-12/13-15
|
2x30.4
|
|
BV UI 302 0018
|
4
|
2x110
|
1-3/6-8
|
2x21
|
95
|
10-12/13-15
|
2x35.1
|
|
BV UI 302 0144
|
4
|
2x115
|
1-3/6-8
|
2x12
|
166
|
10-12/13-15
|
2x20.1
|
|
BV UI 302 0156
|
4
|
2x115
|
1-3/6-8
|
2x18
|
111
|
10-12/13-15
|
2x30.4
|
|
BV UI 302 0161
|
4
|
2x115
|
1-3/6-8
|
2x9
|
222
|
10-12/13-15
|
2x13.5
|
|
BV UI 302 0164
|
4
|
2x115
|
1-3/6-8
|
2x6
|
333
|
10-12/13-15
|
2x9.5
|
|
BV UI 302 0165
|
4
|
2x115
|
1-3/6-8
|
2x15
|
133
|
10-12/13-15
|
2x25.3
|
|
BV UI 302 0169
|
4
|
2x115
|
1-3/6-8
|
2x21
|
95
|
10-12/13-15
|
2x35.1
|
|
BV UI 303 0001
|
6
|
2x110
|
1-3/6-8
|
2x6
|
500
|
10-12/13-15
|
2x9
|
|
BV UI 303 0002
|
6
|
2x110
|
1-3/6-8
|
2x9
|
334
|
10-12/13-15
|
2x12.8
|
|
BV UI 303 0003
|
6
|
2x110
|
1-3/6-8
|
2x12
|
250
|
10-12/13-15
|
2x17.2
|
|
BV UI 303 0004
|
6
|
2x110
|
1-3/6-8
|
2x15
|
200
|
10-12/13-15
|
2x21.8
|
|
BV UI 303 0005
|
6
|
2x110
|
1-3/6-8
|
2x18
|
166
|
10-12/13-15
|
2x26
|
|
BV UI 303 0006
|
6
|
2x110
|
1-3/6-8
|
2x21
|
143
|
10-12/13-15
|
2x29.7
|
|
BV UI 303 0143
|
6
|
2x115
|
1-3/6-8
|
2x18
|
166
|
10-12/13-15
|
2x26
|
|
BV UI 303 0145
|
6
|
2x115
|
1-3/6-8
|
2x12
|
250
|
10-12/13-15
|
2x17.2
|
|
BV UI 303 0158
|
6
|
2x115
|
1-3/6-8
|
2x9
|
334
|
10-12/13-15
|
2x12.8
|
|
BV UI 303 0162
|
6
|
2x115
|
1-3/6-8
|
2x6
|
500
|
10-12/13-15
|
2x9
|
|
BV UI 303 0163
|
6
|
2x115
|
1-3/6-8
|
2x15
|
200
|
10-12/13-15
|
2x21.8
|
|
BV UI 303 0170
|
6
|
2x115
|
1-3/6-8
|
2x21
|
143
|
10-12/13-15
|
2x29.7
|
|
BV UI 304 0019
|
10
|
2x110
|
1-3/6-8
|
2x6
|
833
|
10-12/13-15
|
2x8.7
|
|
BV UI 304 0020
|
10
|
2x110
|
1-3/6-8
|
2x9
|
555
|
10-12/13-15
|
2x12.4
|
|
BV UI 304 0021
|
10
|
2x110
|
1-3/6-8
|
2x12
|
416
|
10-12/13-15
|
2x16
|
|
BV UI 304 0022
|
10
|
2x110
|
1-3/6-8
|
2x15
|
333
|
10-12/13-15
|
2x19.7
|
|
BV UI 304 0023
|
10
|
2x110
|
1-3/6-8
|
2x18
|
277
|
10-12/13-15
|
2x23.3
|
|
BV UI 304 0024
|
10
|
2x110
|
1-3/6-8
|
2x21
|
238
|
10-12/13-15
|
2x27.2
|
|
BV UI 304 0129
|
10
|
2x115
|
1-3/6-8
|
2x7.5
|
667
|
10-12/13-15
|
2x10
|
|
BV UI 304 0131
|
10
|
2x110
|
1-3/6-8
|
2x7.5
|
667
|
10-12/13-15
|
2x10
|
|
BV UI 304 0135
|
10
|
2x120
|
1-3/6-8
|
2x18
|
277
|
10-12/13-15
|
2x23.3
|
|
BV UI 304 0136
|
10
|
2x115
|
1-3/6-8
|
2x15
|
333
|
10-12/13-15
|
2x19.7
|
|
BV UI 304 0153
|
10
|
2x115
|
1-3/6-8
|
2x9
|
555
|
10-12/13-15
|
2x12.4
|
|
BV UI 304 0154
|
10
|
2x115
|
1-3/6-8
|
2x12
|
416
|
10-12/13-15
|
2x16
|
|
BV UI 304 0155
|
10
|
2x115
|
1-3/6-8
|
2x6
|
833
|
10-12/13-15
|
2x8.7
|
|
BV UI 304 0159
|
10
|
2x115
|
1-3/6-8
|
2x18
|
277
|
10-12/13-15
|
2x23.3
|
|
BV UI 304 0171
|
10
|
2x120
|
1-3/6-8
|
2x6
|
833
|
10-12/13-15
|
2x8.7
|
|
BV UI 304 0172
|
10
|
2x120
|
1-3/6-8
|
2x15
|
333
|
10-12/13-15
|
2x19.7
|
|
BV UI 304 0173
|
10
|
2x115
|
1-3/6-8
|
2x21
|
238
|
10-12/13-15
|
2x27.2
|
|
BV UI 305 0147
|
16
|
2x115
|
1-3/6-8
|
2x6
|
1330
|
10-12/13-15
|
2x7.5
|
|
BV UI 305 0148
|
16
|
2x115
|
1-3/6-8
|
2x9
|
888
|
10-12/13-15
|
2x10.9
|
|
BV UI 305 0149
|
16
|
2x115
|
1-3/6-8
|
2x12
|
666
|
10-12/13-15
|
2x14.6
|
|
BV UI 305 0150
|
16
|
2x115
|
1-3/6-8
|
2x15
|
533
|
10-12/13-15
|
2x18
|
|
BV UI 305 0151
|
16
|
2x115
|
1-3/6-8
|
2x18
|
444
|
10-12/13-15
|
2x21.5
|
|
BV UI 305 0152
|
16
|
2x115
|
1-3/6-8
|
2x21
|
380
|
10-12/13-15
|
2x25
|
|
|
|
| |
|
|
|
|
Поставляемые компоненты










|
^ Наверх DIV >
радиошоп, radioshop, радио, радиодетали, микросхемы, интернет, завод,
комплектующие, компоненты, микросхемы жки индикаторы светодиоды семисегментные датчики влажности преобразователи
источники питания тиристор симистор драйвер транзистор, диод, книга, приложение,
аудио, видео, аппаратура, ремонт, антенны, почта, заказ, магазин,
интернет - магазин, товары-почтой, почтовые услуги, товары, почтой, товары
почтой, каталог, магазин, Internet shop, база данных, инструменты, компоненты,
украина, харьков, фирма Космодром kosmodrom поставщики электронных компонентов дюралайт edison opto светодиодное освещение Интернет-магазин радиодеталей г.Харьков CREE ATMEL ANALOG DEVICES АЦП ЦАП